VENDESI CAPANNONE (EX MOBILIFICIO) PER CESSATA ATTIVITA’
A soli 2 km dall’uscita autostradale di Brescia Corda Molle, in posizione strategica e facilmente raggiungibile, proponiamo in vendita un importante complesso immobiliare a destinazione commerciale e industriale, ideale per attività di esposizione, stoccaggio e vendita.
La proprietà sorge su un’area complessiva di circa 5.000 mq completamente recintata ed è dotata di due ingressi carrai indipendenti, entrambi idonei anche al transito di autotreni, garantendo così massima facilità di accesso e movimentazione dei mezzi.
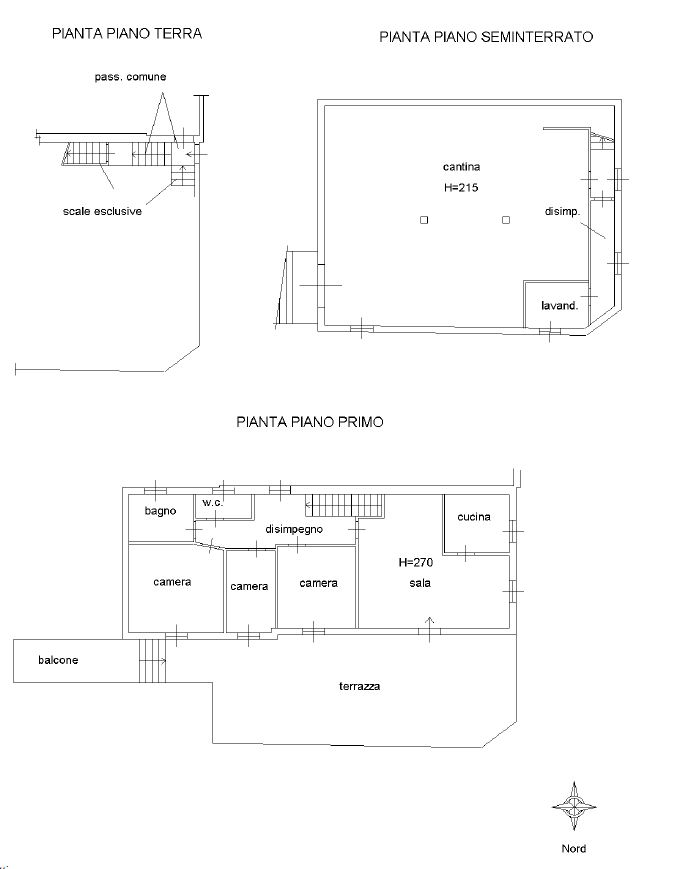
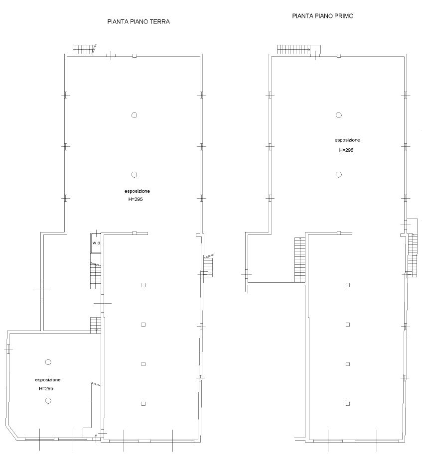
Il complesso è costituito da un capannone disposto su due livelli collegati da scala interna, con predisposizione per l’installazione di un montacarichi e con possibilità di collegamento anche tramite realizzazione di una rampa carrabile esterna. Al piano terra si sviluppano un magazzino di circa 258 mq, un’ampia area espositiva di circa 1.571 mq, un appartamento di 191,55 mq e una cantina di 152 mq. Il piano primo ospita una seconda area espositiva di circa 1.908 mq, un ulteriore appartamento di 127 mq con terrazza di 91 mq, ideale come abitazione di servizio o uffici direzionali.
Le aree destinate all’esposizione sono completamente pavimentate in gres porcellanato e si presentano adatte a molteplici utilizzi commerciali. La struttura è in buone condizioni generali; è presente una vasca antincendio interrata e il progetto antincendio risulta già presentato, seppur mai completato.
La superficie dell’area è prevalentemente a destinazione commerciale, con circa 4.000 mq dedicati all’esposizione, oltre agli spazi di magazzino e alle unità residenziali. L’immobile risulta libero in circa quattro mesi.
Soluzione particolarmente indicata per concessionarie di autovetture nuove e usate, attività di stoccaggio e rivendita, showroom o depositi con area vendita, grazie alla posizione strategica, alla grande visibilità e alla versatilità degli spazi.
Prezzo di vendita € 980.000.
IN ESCLUSIVA SOLO DA IMMOBIL GLOBAL SERVICE DI DADOMO MICHELE.
HAI UN IMMOBILE DA VENDERE?
VORRESTI UNA VALUTAZIONE PROFESSIONALE SENZA SENTIRTI VINCOLATO?
Affidati a Noi, ci prendiamo cura del Tuo immobile come fosse il Nostro.
Immobil Global Service, Via Creta n.21 Palazzo FINPRO PALACE, Brescia Due (BS).








Use the form below to contact us!